项目背景:
核工业二七○研究所创建于1979年,隶属于中核集团公司核工业地质局,地处江西省南昌县,距南昌市中心17公里,占地面积178亩,主要承担铀资源勘查及科研、钻探任务。是江西省第七届、第八届、第九届、第十届、第十一届,连续十年文明单位。公园式的人居环境。
在2019年30年所庆到来之际,所领导决定在办公楼一楼设立一个属于自己的展厅,对外介绍本所的成就、成果,对内介绍地质地矿。我公司就这个项目认真设计,在广告,陈列室布置,信息化方面仔细磋商,最终赢得专家的认同,成功承接下该项目。
项目需求:
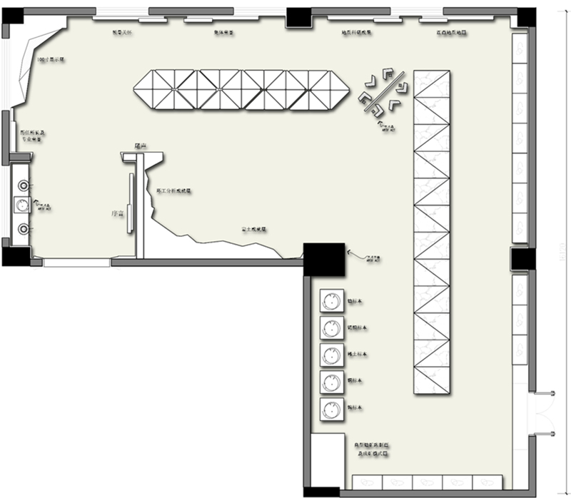
着重于展示企业的文化,传递企业不屈不挠的精神,陈列室总面积约200平米,将“铀矿报国”作为主旋律进行设计构思。
在空间上,“L”型的空间具有一定的延展性但在视觉平衡缺乏对称性,通过大量木色铺叙平衡,给空间补充温馨度,展板的画面朝焦距点集中形成视觉中心
解决方案主要包含:
拆除工程:拆除原有吊顶,拆除原有门,拆除原有踢脚线,墙面粉刷铲除。
基础工程:天花格栅吊顶,木工板封窗户,地面铺贴浅色地胶,进门序言石材造景台(石材),进门序言台背景墙(肌理漆),触摸显示屏幕展示背景墙面,领导关怀展示背景墙,集体荣誉展示背景墙,地质科研成果展示背景墙,江西地质地图展示背景墙,历任所长及专业荣誉展示背景墙,结语背景墙,强电改造,弱电改造。
成品定制工程:门及门套定制安装,高柜(长1050*宽1050),矮柜(长950*宽950),靠墙柜(长2000*宽600),标本矮柜(长600*宽600)。
灯光、广告:灯带/灯管,射灯,LED灯盘,广告灯箱,展示柜内标签。
安防、屏幕系统:监控(7个探头、8个),背景音乐(8个背景音乐、功放、话筒等),触摸显示屏(86寸,1.99M*1.16M),进门地幕(投影机2台、捕捉摄像头、挖矿的视频素材)。
反馈与评价:
整体设计经济实用,运用现代展示风格,动线设计合理,电子化展示良好。









